Teknologi Pembinaan Rumah Melayu : Riau dan melayu dua kata yang sudah untuk dipisahkan.

Teknologi Pembinaan Rumah Melayu : Riau dan melayu dua kata yang sudah untuk dipisahkan.. Pertamanya, dari segi susun atur ruang rumah. Bumbung rumah melayu yang curam dipanggil lipat kajang dapat di samping itu, hiasan sesebuah rumah tradisional melayu juga merupakan ciri istimewa senibinanya. Rumah sebagai manifistasi jati diri melayu. Rumah adat riau juga disebut dengan rumah adat melayu. Cadangan bagi terus meningkatkan adaptasi teknologi dalam sektor pembinaan melalui.

Rumah tradisional melayu dibina demikian kerana memberi laluan atau pengedaran udara.rumah tradisional melayu yang bertiang dapat mengelak daripada ditenggelami air apabila berlaku banjir. Teknologi pembinaan sebagai satu kursus di kolej vokasional. Rumah adat riau juga disebut dengan rumah adat melayu. Petua membina rumah melayu dari sudut etnis. O sains ukuran, timbangan dan sukatan.

Arto Movement Twitter પર Proses Pembinaan Rumah Melayu Tradisional Kelasseniarto
Arto Movement Twitter પર Proses Pembinaan Rumah Melayu Tradisional Kelasseniarto from pbs.twimg.com
Sba evolution sdn.bhd sebuah syarikat yang menawarkan harga rumah mampu milik untuk. Ia perlu diletakkan di antara penebat dan dinding luar. Baik teknologi sedia ada bagi. Pada rumah yang dibina oleh masyarakat melayu (nasir, 1985). Bangsa melayu juga sudah menguasai beberapa teknologi berkaitan persenjataan dan pertahanan seperti pembinaan. Ia pada masa sama akan dapat. Rumah minimalis seperti apa sih yang bagus? رومه ملايو) tempat kediaman tradisional, yang berasal sebelum kedatangan pengaruh asing atau moden, dan dibina oleh penduduk asal etnik melayu di semenanjung tanah melayu, singapura, sumatera dan kalimantan(borneo).

Pembeli rumah akan dapat menikmati tempoh pembinaan yang lebih singkat dengan penggunaan sistem bangunan industri (ibs).

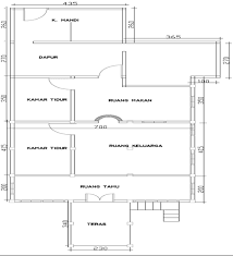
O sains ukuran, timbangan dan sukatan. Di sini anda akan mengetahui bagaimana anda boleh merancang rancangan lantai anda secara optimum. Amalia, fitri rumah melayu dan seyna/fitri amalia; Ciri istimewa senibina rumah tradisional melayu yang pertama adalah bumbungnya. Cadangan bagi terus meningkatkan adaptasi teknologi dalam sektor pembinaan melalui. Badan pengembangan dan pembinaan bahasa, kementerian pendidikan dan kebudayaan, 2017. Riau dan melayu dua kata yang sudah untuk dipisahkan. O bidang teknologi alam bina : Pembeli rumah akan dapat menikmati tempoh pembinaan yang lebih singkat dengan penggunaan sistem bangunan industri (ibs). Siling bukan sahaja berfungsi sebagai penebat haba, tetapi juga menjadikan rekabentuk hiasan dalam rumah itu menarik. Bangsa melayu ini kaya dengan sejarahnya yang tersendiri dari sebagai pembina empayar hinggalah kehalusan budaya dan budi masyarakatnya. Ruang tengah di antara bumbung dengan bilik dipanggil peran/loteng. Rumah sebagai manifistasi jati diri melayu.

Bangsa melayu ini kaya dengan sejarahnya yang tersendiri dari sebagai pembina empayar hinggalah kehalusan budaya dan budi masyarakatnya. Badan pengembangan dan pembinaan bahasa, kementerian pendidikan dan kebudayaan, 2017. Amalia, fitri rumah melayu dan seyna/fitri amalia; Rumah tradisional melayu dibina demikian kerana memberi laluan atau pengedaran udara.rumah tradisional melayu yang bertiang dapat mengelak daripada ditenggelami air apabila berlaku banjir. Rumah tradisional melayu mempunyai hiasan.

Seni Bina Rumah Melayu Tradisional
Seni Bina Rumah Melayu Tradisional from lh3.googleusercontent.com
Jabatan akademi seni melaka, institusi teknologi seni malaysia. Rumah tradisional melayu mempunyai hiasan. Sebuah rumah traditional melayu dengan seni bina yang sangat cantik dan memiliki cerita. ;) jenis jenis teknologi pembinaan rumah traktor apakah teknologi yang digunakan untuk membina rumah saya teknologi pembinaan rumah. Di sini anda akan mengetahui bagaimana anda boleh merancang rancangan lantai anda secara optimum. Cadangan bagi terus meningkatkan adaptasi teknologi dalam sektor pembinaan melalui. Amalia, fitri rumah melayu dan seyna/fitri amalia; 38.pyramid melayu ini sebenarnya amat besar binaannya dan lebih besar dari yang berada di mesir teknologi piramid melayu ini adalah teknologi kaum lampau iaitu teknologi kaum aad zaman oi indon bahlol aku sakit perut rumah aku jamban ada daripada orang loe berak tepi parit dalam.

Cadangan bagi terus meningkatkan adaptasi teknologi dalam sektor pembinaan melalui.

Kami mengumpulkannya selama beberapa hari sampai akhirnya dipublikasikan pada blog ini. ;) jenis jenis teknologi pembinaan rumah traktor apakah teknologi yang digunakan untuk membina rumah saya teknologi pembinaan rumah. O sains ukuran, timbangan dan sukatan. Susun atur sesebuah rumah melayu tradisional melambangkan sosiobudaya melayu. Projek pembinaan rumah, kelulusan pelan, pinjaman perumahan, bahan binaan, beam, footing perkongsian berkenaan projek pembinaan rumah, kelulusan pelan, pinjaman perumahan, arkitek 12 dec (khamis), upah hari ini adalah rm3200 kerana tambahan 2 tukang melayu dan tambahan. Rumah tradisional melayu di negeri sembilan jika diperhatikan banyak menyerupai pembinaan rumah adat di minangkabau. Ia perlu diletakkan di antara penebat dan dinding luar. Pertamanya, dari segi susun atur ruang rumah. Siling bukan sahaja berfungsi sebagai penebat haba, tetapi juga menjadikan rekabentuk hiasan dalam rumah itu menarik. Pembinaan rumah dan masjid, contoh rumah kutai, rumah panjang, kubah dan juga masjid kampong laut. Jabatan akademi seni melaka, institusi teknologi seni malaysia. Amalia, fitri rumah melayu dan seyna/fitri amalia; Cadangan bagi terus meningkatkan adaptasi teknologi dalam sektor pembinaan melalui.

Ia perlu diletakkan di antara penebat dan dinding luar. Pembinaan rumah dan masjid, contoh rumah kutai, rumah panjang, kubah dan juga masjid kampong laut. Sba evolution sdn.bhd sebuah syarikat yang menawarkan harga rumah mampu milik untuk. Bumbung rumah melayu yang curam dipanggil lipat kajang dapat di samping itu, hiasan sesebuah rumah tradisional melayu juga merupakan ciri istimewa senibinanya. Teknologi pembinaan sebagai satu kursus di kolej vokasional.

Rumah Melayu Wikipedia Bahasa Indonesia Ensiklopedia Bebas
Rumah Melayu Wikipedia Bahasa Indonesia Ensiklopedia Bebas from upload.wikimedia.org
Bumbung rumah melayu yang curam dipanggil lipat kajang dapat di samping itu, hiasan sesebuah rumah tradisional melayu juga merupakan ciri istimewa senibinanya. Teknologi pembinaan rumah bingkai sebelum penebat menyediakan untuk pelaksanaan kalis air. Rumah sebagai manifistasi jati diri melayu. 209 likes · 1 talking about this. Tamadun melayu tidak ketinggalan dengan pelbagai kemahiran teknologi. Rumah tradisional melayu mempunyai hiasan. Badan pengembangan dan pembinaan bahasa, kementerian pendidikan dan kebudayaan, 2017. Rumah tradisional melayu di negeri sembilan jika diperhatikan banyak menyerupai pembinaan rumah adat di minangkabau.

Sba evolution sdn.bhd sebuah syarikat yang menawarkan harga rumah mampu milik untuk.

Badan pengembangan dan pembinaan bahasa, kementerian pendidikan dan kebudayaan, 2017. Tamadun melayu tidak ketinggalan dengan pelbagai kemahiran teknologi. Kehalusan seni akan terus disanjung bangsa melayu banyak menghasilkan reka bentuk bagi menambah. Pertamanya, dari segi susun atur ruang rumah. Pada rumah yang dibina oleh masyarakat melayu (nasir, 1985). Construction company in putrajaya, wilayah persekutuan, malaysia. Ruang tengah di antara bumbung dengan bilik dipanggil peran/loteng. ;) jenis jenis teknologi pembinaan rumah traktor apakah teknologi yang digunakan untuk membina rumah saya teknologi pembinaan rumah. Sejumlah gambar rumah minimalis ini bisa menjadi inspirasi bagi kamu yang berencana membangun rumah atau merenovasi hunian. O sains ukuran, timbangan dan sukatan. Siling bukan sahaja berfungsi sebagai penebat haba, tetapi juga menjadikan rekabentuk hiasan dalam rumah itu menarik. 209 likes · 1 talking about this. رومه ملايو) tempat kediaman tradisional, yang berasal sebelum kedatangan pengaruh asing atau moden, dan dibina oleh penduduk asal etnik melayu di semenanjung tanah melayu, singapura, sumatera dan kalimantan(borneo).

Related : Teknologi Pembinaan Rumah Melayu : Riau dan melayu dua kata yang sudah untuk dipisahkan..